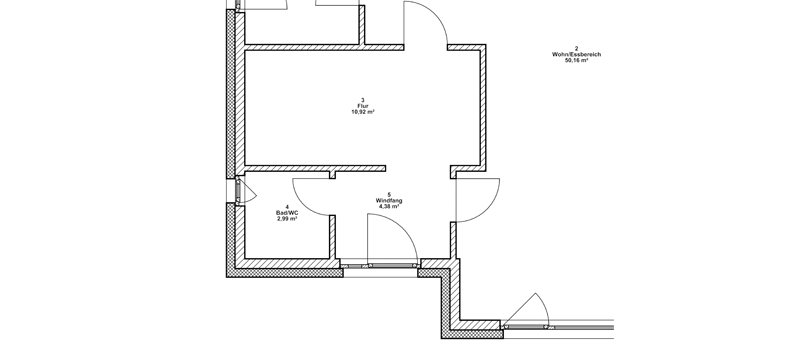
| Nicht nur zur Kontrolle der
Räume, sondern auch für weitere
nützliche Automatismen, nutzen wir die automatische Identifikation von
Flächen. |
Dazu verwendenn wir im
Befehl:
[Dokumentation]--[Flächen]--[Flächen]
die Option
[erzeugen] |
.png) |
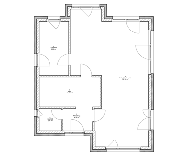
| Erledigt. |
.png) |
Diese Seite gehört zur ACAD-BAU
Dokumentation und wird bereitgestellt von der
CTB Software GmbH. Ihre Inhalte wurden
mit größtmöglicher Sorgfalt erstellt. Für die Korrektheit, die Vollständigkeit,
die Aktualität oder Qualität der bereitgestellten Informationen und Daten
wird jedoch keine Gewähr übernommen.
|